Nicholas Umney
Main navigation
All Projects
Residential
Heritage
Cultural
Commercial
Speculative
CV
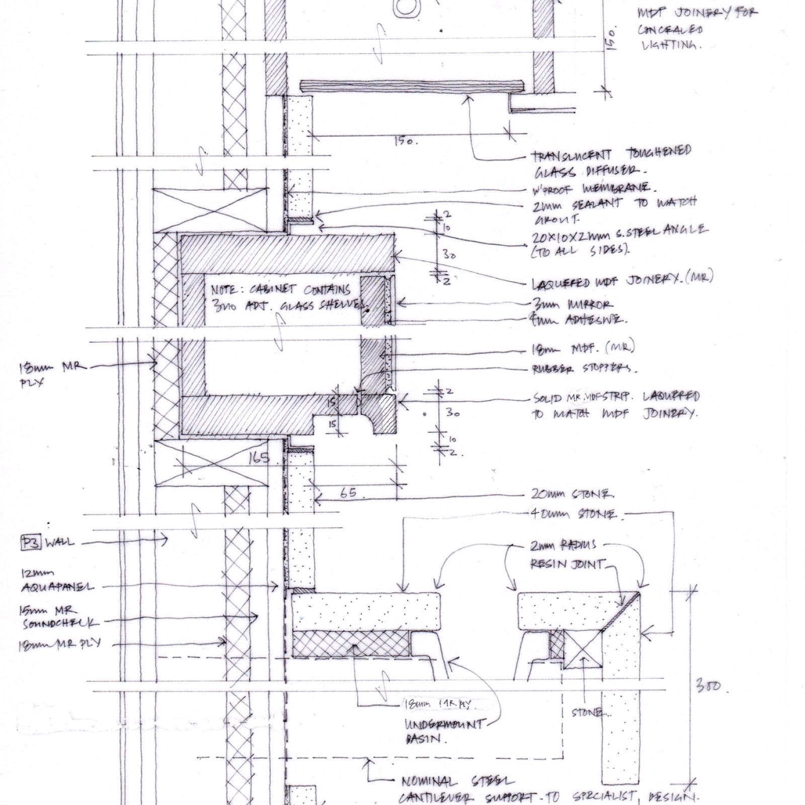
Hampstead Apartments
New luxury housing in a garden setting
My Role:
Services co-ordination and joinery detailing
Architect:
Flanagan Lawrence