Nicholas Umney

Borussia

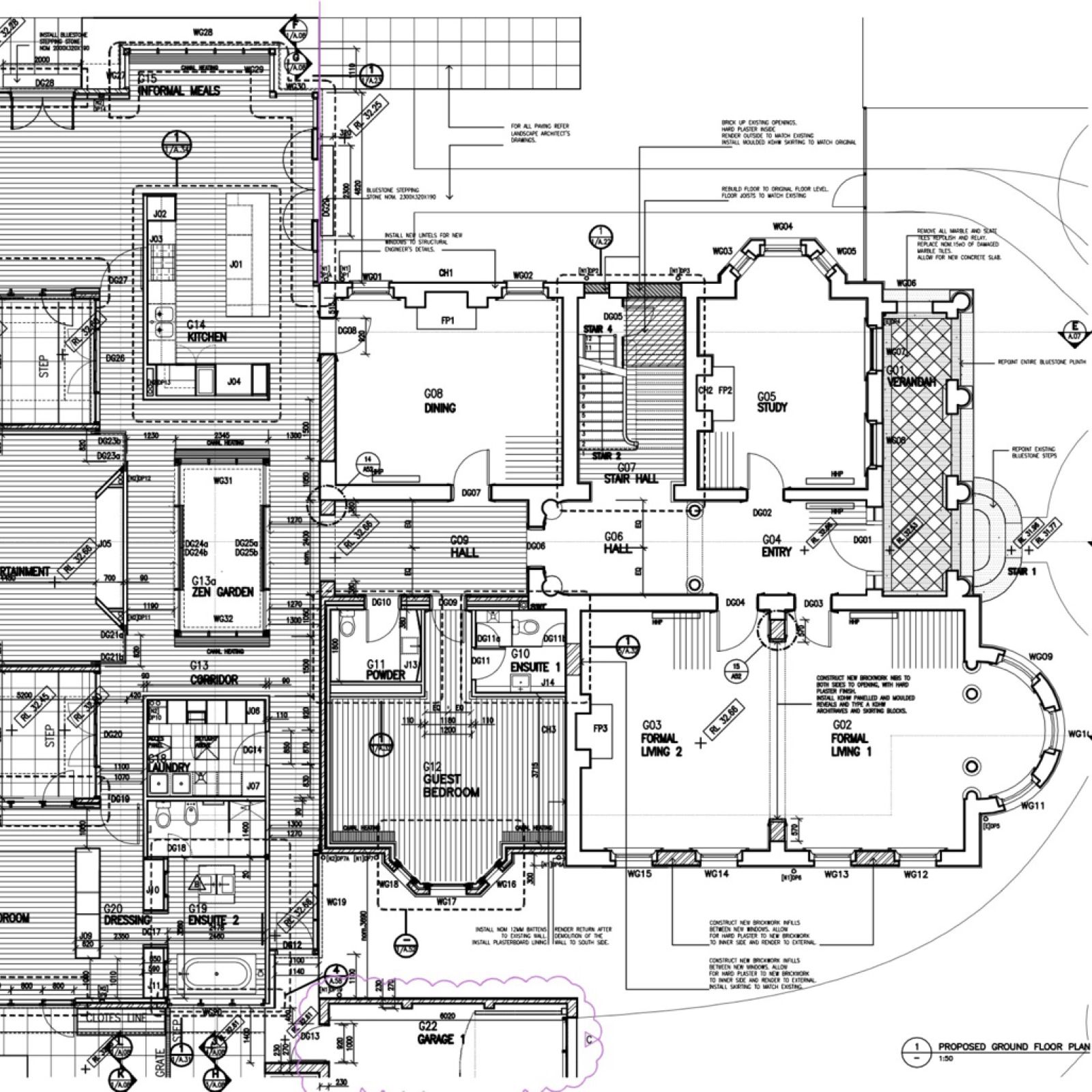
Large Victorian mansion badly damaged by fire and decades of neglect. Complete restoration of original interior, and contemporary additions.

My Role: Detailed survey, preliminary design and documentation, planning and listed-building consent approvals, specification
Architect: Lovell Chen